不知道大家有沒有住過40余平房子的經歷,那叫一個擠!而今天這間43㎡的loft公寓,卻硬生生把小戶型玩出了花樣,休閑、生活、工作區一個不落,具體什么樣呢?一起來看看~今天要分享的這個戶型來自于臺灣,在設計師的改造下,將一間43㎡的老破公寓劃分出了多個區域,不僅不顯擁擠,還頗具美感~
43㎡小戶型大改造 擺脫擁擠讓您的家更具美感
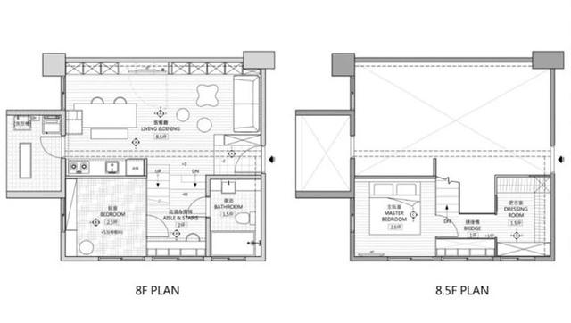
【戶型圖】

先來看看戶型圖,日常生活和工作放在樓下,休息的區域在二樓,大體就是這樣一個思路~
【玄關】

雖然戶型很小,但還是表現出了玄關,而為了避免隔斷過多浪費空間,設計者用換鞋的矮柜進行隔斷,一舉兩得~
【客餐廳】

鞋柜的一側就是客廳了,并沒有遵照電視沖著沙發擺放的常規設計,而是將沙發擺放至一側,并利用了電視墻進行收納,這樣一來,不僅雜物有地方歸置,且也讓客廳更顯寬敞。

餐廳同樣未設隔斷,在整體空間的另一側進行擺放,這樣就將整個客廳、餐廳空間充分利用了起來。
【小廚房】

小小的廚房全部采用了嵌入式廚電,設備一應俱全,日常兩三口之家生活完全夠用。
【樓梯間】

樓梯間與以往見到的大有不同,是一個充滿陽光的地方,在這里擺放上一張書桌和柜子后,工作、學習、收納……功能多多!
【樓梯間的另一側】

目光轉到樓梯間的另一側,居然也別有洞天,擺上了一些榻榻米墊子后,可以當做下午茶、休閑娛樂之所,同時也可以當做孩子的兒童房來使用哦~
【主臥室】

二樓的主臥同樣采用了大面積的木質材料,并用玻璃門來隔斷,清新自然的同時也不會影響整間房屋的采光性~好評~
【衣帽間】

另一側的衣帽間是我們最后要介紹的地方,這可以說是臥室的另一端,有專門的地方收納衣物、床品,怎還會顯得雜亂呢?