分享的這套案例是50平的北歐風單身公寓,整體的設計非常小清新,簡約而又時尚。業主總的花了15萬元的裝修費用,可以說是在軟裝和硬裝上都要求非常的精致和完美了,一起來看看這套小戶型的房子吧!

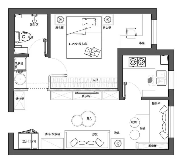
平面布置圖

設計三維圖

入戶一個迷你的換鞋凳,搭配金屬掛衣桿,再加上地毯、掛畫、抱枕等軟裝,玄關這個角落就顯得超級有格調了!

玄關的另一側擺放了大大的冰箱,邊上是小矮柜和沙發,簡單的用掛畫來裝飾沙發背景墻,就足夠美了。

客廳的寬度會比較窄,所以茶幾用了一個迷你的來代替,緊靠沙發邊,方便日常通往餐廳和廚房。

吧臺小餐桌,1~2個人居住的這個小公寓,有個吧臺作為餐桌就好了。加上利用陽臺的位置改了一個榻榻米,平時休息也方便多了,收納的空間非常充足。

這個電視柜,全靠書架組合起來的電視柜,還可以作為電視背景墻來用,擺滿自己喜歡的東西之后,多開心啊~

L型的廚房是非常適合小戶型的,動線最短,平時操作也非常的方便,特別是正方形的廚房,做成L型的也顯得更加寬敞。

臥室床頭背景墻是一抹舒適的綠色,讓臥室顯得更加小清新。飄窗位置完全改成了一個小書房,平時工作、學習都非常方便。

非常有ins網紅感的一張照片,吊燈、床頭柜、背景墻和床上軟裝完美的搭配在一起,組成一個唯美的畫面。

晾曬衣服比較麻煩,所以業主選擇了洗衣機和烘干機并齊,這樣衣服洗完就烘干,非常方便,洗手臺外置也很適合小戶型衛生間。