這是一套103平米的現代簡約風格裝修案例,整體空間以現代極簡的營造基礎,在家具上也是保持時尚的質感,以中式的禪意元素混入,營造出一種高冷端莊的檔次氣質。
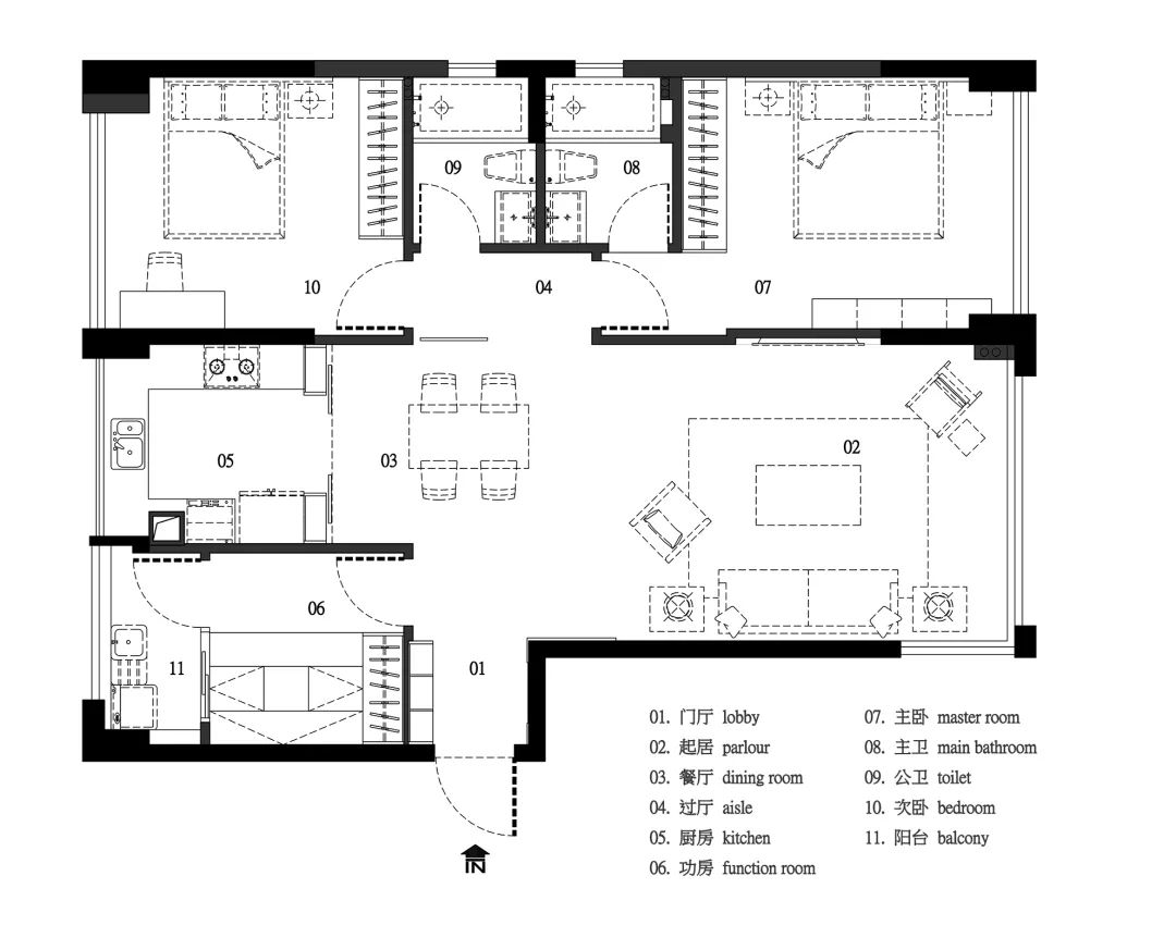
平面布置圖

玄關

▲玄關左側定制木質鞋柜,中間加入一個黑色的空格層,而右側墻面則是掛了一面全身鏡,也是方便出門前的儀容整理。
客廳

▲客廳保持簡潔高級的黑白灰空間基調,在無主燈的空間氛圍下,布置上新中式的家具,營造出一種極簡端莊的高級空間感。

▲電視墻兩側是灰色大板磚背景墻,中間以黑色不銹鋼包起一個造型,加入雅白的背景墻,壁掛上電視機,整體顯得簡潔而又時尚高級。

▲沙發墻以卡其色的乳膠漆為背景,簡潔的墻面,布置上實木框架+布藝坐墊的新中式沙發,天花加入黑色線條裝飾,也顯得更加優雅大方。

▲沙發墻旁邊布置實木+皮藝的休閑椅,還有一個金屬小茶幾,也讓空間顯得更加精致華麗。
餐廳

▲餐廳空間在木色的墻面基礎,在與衛生間之間加入一道黑色屏風,形成一種簡潔現代的大方氣質感。

▲餐桌以黑色餐桌腳+白色大理石材質的臺面,還有布藝坐墊的餐桌布置,整體極簡的空間,布置優雅的家具,讓用餐氛圍顯得端莊而舒適大氣。


▲餐廳旁邊的廚房推拉門,也是與兩側的展示柜靈活共用,展示架上擺著精致的書籍與裝飾品,顯得更加精致明亮。
廚房

▲廚房在灰色墻面地面與操作臺空間基礎,加入白色的櫥柜,左側電器柜把烤蒸箱嵌入,窗戶也加入百葉簾的搭配,讓做飯空間也更加時尚現代。
過道


▲過道整體墻面木色的基礎,房門與木色墻面一體的隱藏設計,顯得簡潔統一而大氣。
臥室

▲臥室床頭墻以木飾面的背景與窗邊連為一體,布置實木床,簡潔素雅的床單,床頭靠背是藍色皮藝的,營造出自然舒適的端莊與高級空間感。

▲床頭墻左側加入銀杏葉的墻布,旁邊布置圓形的黑色床頭柜,也是顯得更加儒雅端莊。

▲極簡的衣柜,床尾處懸空的書桌布置,整體顯得實用而大方。
次臥

▲次臥以灰色的床頭墻,布置鏤空的胡桃木靠背床,干凈素雅的床單,極簡的衣柜造型,簡單而不失優雅質感。


▲床尾位置定制一張懸空的木色書桌,側邊加入開放展示格架,木格延伸到窗戶上方與右側的柜體,也是顯得和諧自然而大方。