屋主是一個思想前衛并且愛好廣泛的95后,對于房屋的需求就是可以隨心搭配,不局限于某一固定風格,自己獨居的空間不一定很豪華,但一定是自在的空間,是擺脫一日高強度工作后安靜舒適的棲息地。


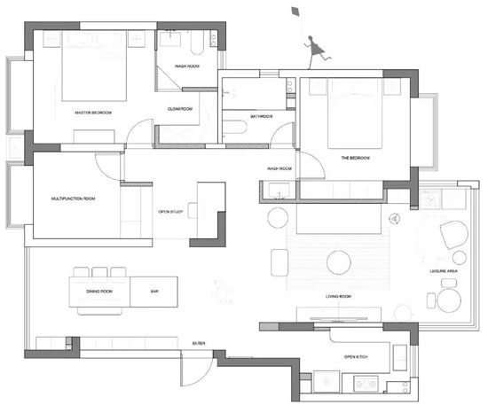
平面布局圖
玄關

玄關映入眼簾的是獨特的收納盒及裝飾畫,充分體現了屋主個性與喜好。左側設立了與餐廳相連接的整排收納柜。
客廳

在這個充滿活力的住宅里,展現出不拘一格的魅力,以各種方式和諧地將屋主喜好的物件、紀念品結合起來。

神秘深邃的藍色作為沙發背景,配上搞怪的鏡子元素和充滿生氣的綠植,也是意外的和諧舒適。

靠近陽臺的地方設置了一組開放柜,用于擺放屋主的藝術品和紀念品,黃色跳脫出來,避免空間單調。

整個客廳空間沒有復雜的硬裝造型,選擇用特殊造型材質的家具裝飾品來體現空間的獨特性。不拘一格的搭配方式,體現了各種各樣的奇想。

百葉窗很好地作為光線調節器,保持一份神秘及趣味。

作為全屋最好的采光區域,將原有的生活陽臺改造成休閑陽臺,在此休息片刻,閱讀,咖啡,一眼望盡屋外秦淮河的綠化景觀。
廚房

接近黑色的廚房頂面、深色木飾面、不銹鋼墻面飾面以及不銹鋼臺面,無一不體現了屋主的獨特喜好,每一個元素獨立存在卻能很好的結合在一起。
餐廳

從玄關進入房屋,開闊的餐廳空間實現了功能與情景的融合。

餐桌與中島的連接,保證最大程度的餐桌使用率,同時還提供了更多的書籍收納空間,滿足靈活辦公的需求。

餐廳左側則是一整排的收納系統,弧形門洞和弧形的收納格相互呼應。
書房

開放式書房很好地鏈接了餐廳及客廳的關系,在滿足日常辦公需求的同時,為房屋提供了更多的可能性。

書房的墻面貼上了屋主的照片,空間充滿了生活氣息。

書房與客廳之間的橘皮玻璃能夠滿足辦公時與客廳之間相對獨立的功能需求。

同時能夠將客廳一側的光線引入到書房及過道區域,多了一份趣味性。
過道

以書房為中心的回字形動線布局,在提供靈活自由的動線的同時,也給屋主的愛好預留了更多搭配組合的空間。

將自行車放置在此的同時,書房另一側的過道也可以滿足進入衛生間及臥室的需求。
臥室

臥室采用綠色及灰色的搭配,呼應空間主體的同時,能夠將深色系木制床襯托的更具有質感。

空間中的元素雖然少但是都十分精致,質感滿滿。

延續采光至上的前提,主衛與臥室之間采用半透明玻璃作為隔斷,在滿足功能的同時能夠讓臥室空間視覺效果更加具有層次。
同時縮小了主衛空間,在右側開辟出來了衣帽功能,滿足屋主的收納需求。
衛生間

衛生間延續了整體工業與復古融合的基調,墨綠色的墻磚質感更顯突出。