擁有一套帶閣樓的房子是不少人的夢想,
但帶閣樓的頂層房子因空間分布高矮不一,
往往會形成空間死角,
本案就遇到這樣一套奇葩戶型,
而建筑學出身的設計師在本案中,
把建筑美學和設計美學進行融合,
對住宅進行結構重塑、化繁為簡,
打造出“無界”住宅。
使用面積:83+22=105㎡

一樓設計上,根據業主的居住需求,拆除部分非承重墻,重新布局功能區:
1、廚房改至樓梯下,設為開放式廚房。
2、把餐廳改到原廚房位置,和客廳相連,打造更寬敞的公共空間。
3、拆除陽臺和室內的非承重墻,實現室內擴容。
4、主臥借用部分空間給主衛,實現三分離。

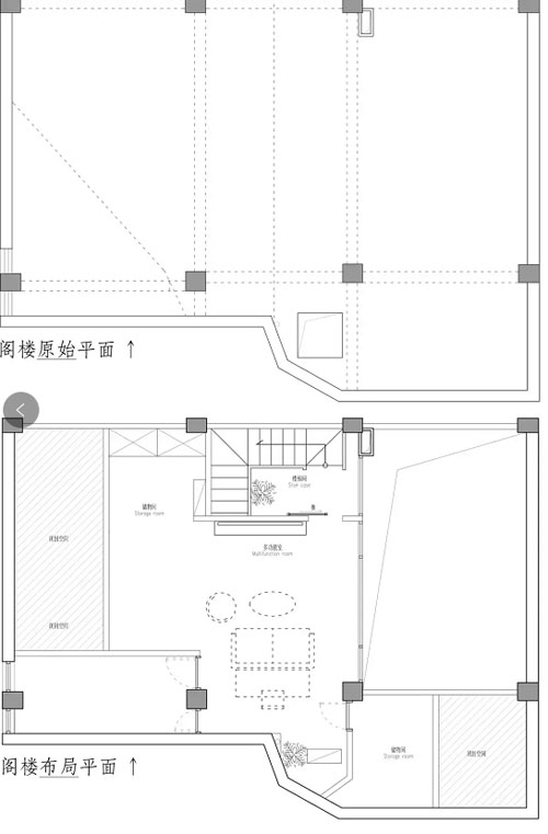
閣樓設計上:
1、把閣樓的一部分改為挑空,增加客廳、餐廳部分的層高,讓空間看起來更開闊。
2、充分利用閣樓上空間死角,可改造成多功能室、收納區,以及光、風通道。


在顏色上,
選用簡潔的黑白灰作為主色調,
增加原木元素,
為住宅增加溫度,
配合綠植、掛畫、暖色布料,
打造出清新自然的居住壞境。

如果你留心,
會發現樓梯、柜門、家電等扶手都隱身了,
屋內家具都簡化為方方正正的立方體,
整體看來和諧統一。
玄關

從入戶大門進來,
首先看到的是白色的頂天立地柜,
這樣既能部分遮擋室內空間,
保留私密性,
又能增加收納空間,
方便出入時取拿物品。
客廳



把原本的飄窗區域打掉,
嵌入定制沙發,
為客廳增加空間的同時,
增加采光性。

靠墻區域定制了一系列收納柜,
為客廳增加了收納空間。

站在閣樓俯視挑空的客廳,
寬敞明亮。
充滿休閑氣息。
餐廳

餐廳選用了木質餐桌和長椅,
為餐廳區域增加了溫暖氣息。

餐廳和客廳間沒有隔斷,
方便客廳餐廳的交流互動,
用餐時也可以看電視。
主臥

主臥巨大的落地窗保證了采光和視野,
床頭的背景墻選用黑色,
家私選用有顏色更深的胡桃木,
整間臥室顯得簡約而不乏質感。

黃銅的五金材料,
為臥室增加了精致感。
廚房

廚房改為開放式,
并做了一圈多功能操作臺,
既可用作操作臺,
又可用作吧臺,
下廚做飯不再覺得局促。

廚房操作臺外立面用水泥灰免漆板裝飾,
亮黑色部分劃分出吧臺區。