|
|
25㎡ 的小公寓,做個 LOFT 剛剛好!
發布時間:2019/12/11 10:57:05 來源:轉載 空間設計 編輯:中國家裝家居網

這個位于俄羅斯莫斯科的小公寓
面積為 25.6㎡
由 Andrey Barinov 設計

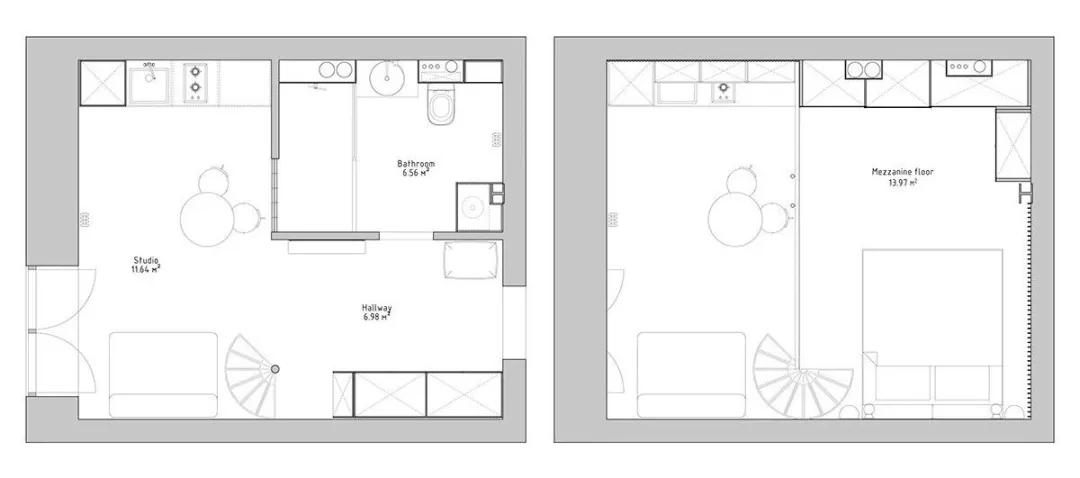
△平面圖

△軸測圖
玄關的設計非常簡潔
灰色的換鞋凳靠墻擺放
為出行歸家提供了便利

掛壁式的鞋柜搭配圓形妝容鏡
鞋柜上方還能放
眼鏡、鑰匙、卡包等小物品


客廳只靠墻擺放了一張灰色的雙人沙發
旁邊有一盞簡約的落地燈



與沙發相對的是廚房
木質的柜門、白色的臺面
六邊形防濺擋板
烹飪簡單的美食完全沒有問題



餐廳在廚房和客廳中間
白色的圓桌搭配同色系餐椅
頂部選用一盞造型時尚的吊燈
界定了區域的同時
又點綴了空間



衛生間的入口在玄關處
室內因為所處位置的關系
采光并不是很好
所以設計師運用玻璃磚做隔墻
既增加了室內亮度也有一定的隱私性


內嵌式的灰色臺盆
安裝在墻面上的開關和水龍頭
都很特別
鏡柜底部還設計了燈帶照明
讓使用更便利


沙發邊的旋轉樓梯
擁有獨立的踏板
每一個臺階都運用花崗巖點綴
既是聯通上下樓的紐帶
也能作為小茶幾使用

上層空間選用木地板
緩解了清冷氣息
灰色的簾子在有需要的時候拉上
就是一個私密空間了


衣帽間選用大面積的磨砂玻璃做門
透光效果好
有助于提高了室內采光
讓小空間不壓抑

地址:俄羅斯聯邦、莫斯科
面積:25.6㎡
設計:Andrey Barinov
|
|
|
|
|
TOP 熱點點擊排行 |
|
|
|
今日推薦 |
|
|
名人家居欣賞 |
|
|
|
|
|
居家美圖欣賞 |
|
|
|
賣場活動 |
|
|
|
|
|