現在越來越多的年輕人在裝修房子的時候都比較喜歡簡約風格,現代風格。一套房子的效果好不好,主要是在裝飾了。今天小編分享的是80平米簡約裝修案例,用3款案例來詮釋現代簡約風,一起來看看吧!
案例一:
設計風格:現代簡約
施工工期:50天
工程面積:80平米
房屋類型:2室1廳1廚1衛
整體造價:72032元(設計+硬裝)
設計說明:
本案為后現代設計風格,后現代理想主義的散現,生活真諦的對白。
對于現代風格,時尚是其不可或缺的元素,但體現內涵更為重要。本案重點對于電視背景與墻的裝飾處理,使進門處本已縱深感很強的客廳,增加了橫向的延伸感,詮釋了空間的層次,使視覺更加充盈豐滿。

二居室-80.00平米-客廳裝修效果圖

二居室-80.00平米-客廳裝修效果圖

二居室-80.00平米-臥室裝修效果圖

二居室-80.00平米-臥室裝修效果圖

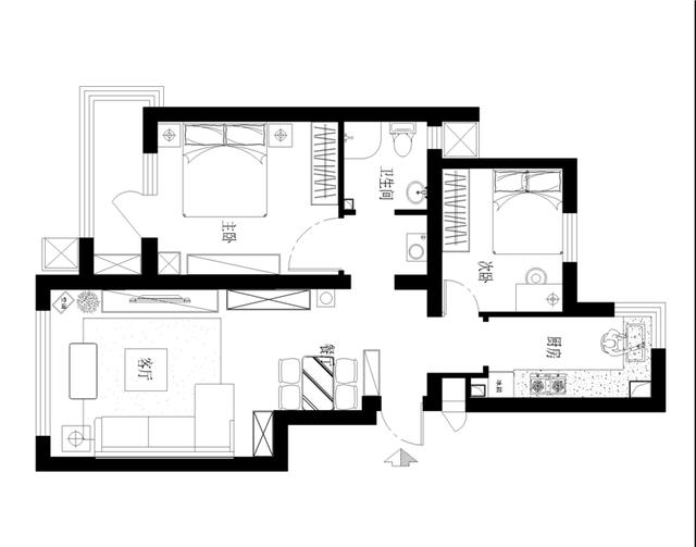
二居室-80.00平米-戶型圖裝修效果圖

二居室-80.00平米-戶型圖裝修效果圖
案例二:
設計風格:現代簡約
施工工期:50天
工程面積:80平米
房屋類型:2室1廳1廚1衛
整體造價:69032元(設計+硬裝)
設計說明:少即是多,多即是少。如果發現自己的家被濃烈的世俗氣息淹沒了本屬于你的獨特氣質和精致品位,那你可能是擁有的東西太多——書和雜志,家居辦公用品和電腦設備,玩具總匯以及廚衛用具。怎樣才能將自己從繁雜中解救出來,怎樣才能走出無端堆砌的束縛,而生活在一個舒適又美觀的環境中呢?答案就是簡約主義。

二居室-80.00平米-客廳裝修效果圖

二居室-80.00平米-臥室裝修效果圖

二居室-80.00平米-客廳裝修效果圖

二居室-80.00平米-書房裝修效果圖

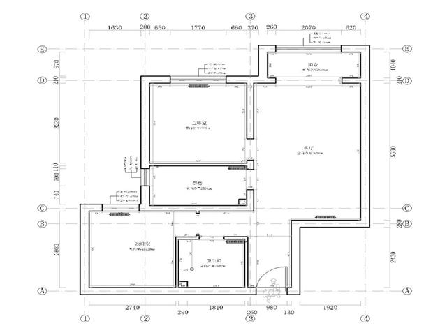
二居室-80.00平米-戶型圖裝修效果圖

二居室-80.00平米-戶型圖裝修效果圖
案例三:
黑白裝飾中簡單的線條,表達出了深刻的意境。簡約的枝條,顯得優雅、自然和諧,為空間增添了時尚的氣息;枝頭上開滿了紅心,象征著美麗和愛情,黑白色象征著永恒,三合一組合起來就象征著永恒的愛情和美麗
一幅高品質的黑白裝飾畫,能提升您的家居品味,改善家居環境,同時讓您每天都能保持好心情。雅致的風格,顛覆傳統的設計理念,以自然原生態的姿態,成為空間中安靜的一隅。

二居室-88.00平米-客廳裝修效果圖

二居室-88.00平米-餐廳裝修效果圖

二居室-88.00平米-廚房裝修效果圖

二居室-88.00平米-臥室裝修效果圖

以上是小編為您分享3套80平米小戶型簡約裝修案例,你有沒有看中其中的一套呢?希望你會喜歡。