轉眼就已經到了2019年5月份了,每過一年都會有很多新東西出現。對于建房這方面也是這樣,每年都有新的房子款式。下面小編就給大家介紹一款別墅樓房,這一款絕對是農村房子的最新款式,想要了解的一起來看看吧。

房子整體立面的下半部分采用了面磚進行裝飾。上半部分則使用了真石漆,兩者相搭配干凈簡約,視覺效果非常好。

房子的外觀利用顏色的變化來劃分空間,而整體的顏色則以較為淡雅和清新為主,灰色、白色和淡黃色,展現了歐式房子獨有的特色。

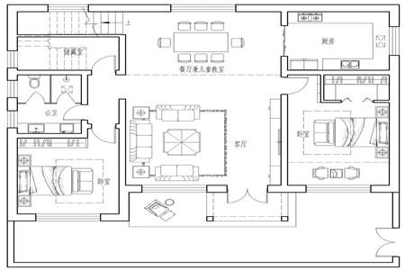
房子進門后,客廳和餐廳采用了開敞設計,沒有任何的阻隔,使得整體空間十分通透和大氣。一層和二層都設計有吃飯的地方,一層餐廳位置在有需要時,還可作為其他用途使用,若人數較多,也可占用部分客廳空間。

一層有兩間臥室,都位于南側,較好的采光條件可以讓室內保持干燥,提升嫁人居住的舒適度。公用的衛生間與樓梯間相鄰,公衛采用了干濕、潔污分離,方便打理,能夠保持良好的衛生環境。

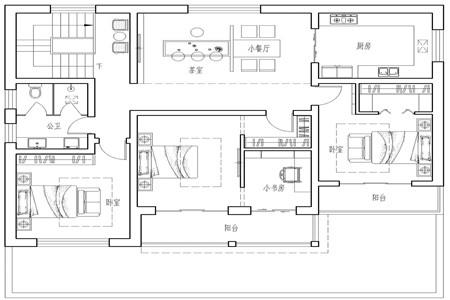
上樓處合理的流線設計,讓二層的茶室形成一個較為完整隱秘的空間,使用感非常好。二層總共有三個臥室,臥室朝南。中間的主臥還帶有小書房,既可以工作也可以學習。此外臥室還有室外平臺,可以作為觀景或晾曬的空間,豐富了房間的整體功能。

二層的主臥陽臺通過空間退讓增加了立面的凹凸效果,豐富整體層次感的同時也為臥室提供了室外活動空間,使得居住體驗感更好。

客廳和玄關對應空間采用兩拱三柱的裝飾,通過線條變化和裝飾讓入戶空間顯得十分大氣。二層臥室的陽臺欄桿采用了經典的歐式羅馬柱,提升了空間的連貫性,空間變化在屋頂處通過不同線條展現不一樣的層次。

南側的寸院可保證室內采光,客廳外平臺借助門頭遮陽擋雨,是個看斜陽品細雨的好去處。院子里種一些綠色的植物,又不至在視覺上過于擁擠,也更加生動富有靈動性。

如果你想要建房或者正在建房,在樣式選擇方面可以參考小編的介紹哦。希望小編整理的關于2019年農村別墅設計新樣式的內容可以給大家帶來幫助。