這間烏克蘭敖德薩的公寓設計項目于2014年底開發。之后設計師一直在努力避免帶入任何變更。

▲ 客廳及廚房
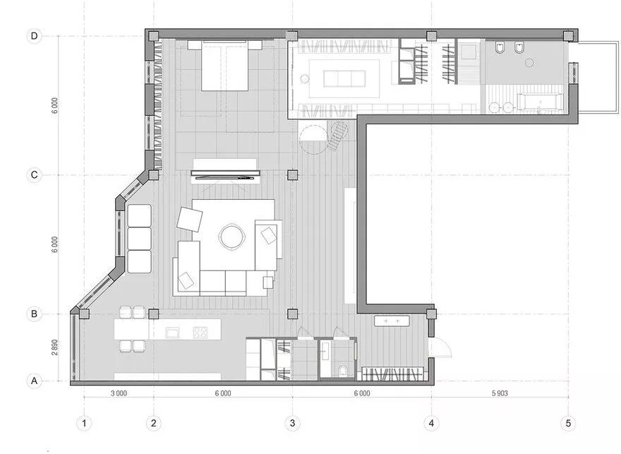
公寓的主人要求為自己和客人創造舒適的開放空間。建筑師使用最少的門或墻壁規劃出公寓,同時為所有公寓區域提供有效的解決方案,室內包括起居室,廚房,臥室,主人和客用浴室。這間公寓沒有任何大廳。從臥室到主浴室的過渡通過寬敞的衣柜。規劃使所有功能區域在同一時間保留了隱私。當客人住在一個區域時,他只會看到符合這里使用的東西。
該項目的作者試圖保持開放空間。為此,他們將書架移到了窗戶墻上,讓其他地方都沒有任何物品。建筑師沒有計劃創建一個經典的閣樓。由金屬條制成的盥洗臺在室內呈現出女性的優雅。

▲ 平面圖

▲ 餐區

▲ 餐區與廚房緊鄰

▲ 裸磚墻(文化石)

▲ 臥室一側做書桌

▲ 客廳一側電視墻

▲ 書架

▲ 臥室

▲ 衣帽間

▲ 浴室
▲ 浴室